Wet voorkeursrecht gemeenten gevestigd op akkers Luchen fase 2 (Luchen West)

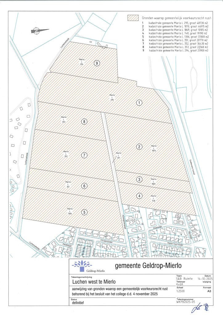
Het college van burgemeester en wethouders van Geldrop-Mierlo heeft op dinsdag 4 november de Wet voorkeursrecht gemeenten (Wvg) gevestigd op de akkers achter Luchen fase 2: Luchen West (zie het kaartje bij dit artikel).
Wat houdt dit in?
De gemeente Geldrop-Mierlo is op dit moment op zoek naar mogelijke locaties die bijdragen aan de woningbouwopgave. Er is immers de komende jaren een groot tekort aan woningen. Luchen West is in beeld voor woningbouw omdat deze aansluit op de bestaande wijk Luchen. We weten nog niet of deze uitbreiding mogelijk is en hoe die eruit komt te zien. Door de Wet voorkeursrecht gemeenten op Luchen West in te stellen, kan de gemeente op tijd beginnen en samen met buurtbewoners en andere betrokkenen in gesprek gaan over wat op deze locatie mogelijk is. Door de Wvg op dit gebied te vestigen mag de gemeente als eerste de grond kopen als een grondeigenaar in dat gebied wil verkopen. Zo houdt de gemeente de regie over de toekomstige ontwikkeling van dit gebied en voorkomen we dat projectontwikkelaars de grond opkopen. Als de gemeente de grond dan later van hen moet kopen, wordt het mogelijk duurder. Dit kan invloed hebben op de prijzen van toekomstige woningen in dit gebied.

Deze locatie is naar voren gekomen uit onderzoek naar potentiële uitbreidingslocaties in de gemeente Geldrop-Mierlo. Er zijn in deze fase nog geen studies uitgevoerd, schetsen gemaakt of onderzoeken uitgezet. Dit is namelijk niet nodig voor het vestigen van het voorkeursrecht.
Besluitvorming
In de commissie van 12 januari 2026 is het dossier behandeld, deze kunt u terugluisteren via:
www.geldrop-mierlo.nl/bestuurlijkeinformatie.nl
Ook vindt u hier de bijbehorende stukken (raadsvoorstel, bijlagen, etc.).
In de raadsvergadering van 2 februari 2026 heeft de raad ingestemd met het vestigen van het voorkeursrecht, gedurende 3 jaar. De gemeente moet binnen 3 jaar een globale visie voor het gebied vaststellen, om het voorkeursrecht nogmaals met 3 jaar te kunnen verlengen. In de daarop volgende periode van 3 jaar moet de gemeente deze visie uitwerken tot een concreter programma.
Globale tijdlijn van het te doorlopen proces
2026 + 3 jaar: opstellen visie, waarmee het voorkeursrecht voor 3 jaar verlengd kan worden t/m 2029
2029 + 3 jaar: opstellen programma, waarmee het voorkeursrecht voor 3 jaar verlengd wordt t/m 2032
Na 2032 kan de gemeente nog tweemaal het voorkeursrecht met 5 jaar per keer verlengen.
De planning hangt af van ambtelijke capaciteit en prioritering van projecten.
